- ナレッジベース
- サーボモータ・アンプ
- A6シリーズ(現行品)・A5Ⅱ/A5シリーズ(受注終了品)共用
-
リレー・カプラー
-
コネクタ
-
スイッチ/インプットデバイス
-
ボリューム/エンコーダ
-
制御機器商品全般
-
問合せ窓口
-
ファイバセンサ
-
ビーム(光電)・レーザセンサ
-
フォトマイクロセンサ
-
エリアセンサ
-
ライトカーテン
-
安全機器
-
近接センサ
-
特殊用途センサ
-
圧力センサ・流量センサ
-
検査・判別・測定用センサ
-
静電気対策機器・イオナイザ
-
センサ周辺機器
-
IoT関連ユニット・省配線システム
-
レーザマーカ
-
コードリーダ
-
PLC
-
表示器
-
省エネ支援機器
-
タイマ・カウンタ・コンポ
-
画像センサ・画像処理機
-
UV照射器
-
サーボモータ・アンプ
-
小形ギヤードモータ(受注終了品)
-
ブラシレスモータ アンプ(受注終了品)
-
インバータ
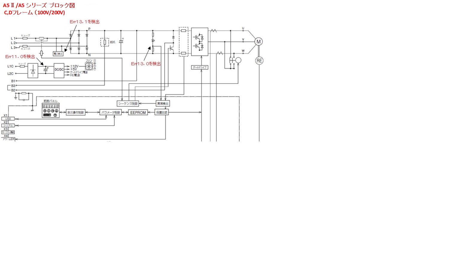
Err13.1 主電源不足電圧保護(AC遮断検出)について、原因と処置を教えてください。[30070]
Err13.1 主電源不足電圧保護(AC遮断検出)について、原因と処置を教えてください。
【原因】アンプの主電源入力のAC部分で、欠相が検出された異常です。
Err13.1はエラー履歴に残りません。
【処置】
欠相はL1-L3間で検出されているため、単相入力で立ち上げ時に発生した場合は、L1-L3間に正しい電源が入力されているかを確認してください。
その他の場合は、以下の点を確認してください。
・主電源入力の電圧
・配線の接触不良や断線の有無
・電源の容量
また、主電源オフ検出時間(Pr5.09)も適切か確認してください。
特に、多軸で同時に立ち上げる場合にこの異常が発生する場合は、電源容量が不足している可能性があります。
その場合は、ブロック分けを行い、順次立ち上げるなどの対策を行ってください。
